Новосибирская консерватория вложит 700 миллионов в ремонт большого зала
Новосибирская государственная консерватория имени М. И. Глинки ищет подрядчика для ремонтно-реставрационных работ в большом концертном зале. Информацию об этом разместили на сайте госзакупок. Цена контракта — 699 млн рублей. Заявки на конкурс принимают до 21 июля.
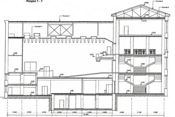
В документах закупки сообщается, что проект капремонта пристройки с большим концертным залом на ул. Советской, 31 разработал проектно-изыскательский институт «Сибжелдорпроект». Пристройка имеет четыре этажа и подвал, её общая площадь — 2525 кв. метров. Это памятник культурного наследия регионального значения.
Предстоящий капитальный ремонт предусматривает замену окон на ПВХ. Также отремонтируют входную группу, заменят лестничные марши и напольное покрытие, ограждения парадной лестницы и внутренние двери. Капитально отремонтируют и кровлю вместе с водосточной системой, а несущие конструкции усилят. Обновление коснётся всех инженерных систем в здании.
Два деревянных панно работы художника Александра Чернобровцева, расположенных на парадной лестнице, отреставрируют и обработают противопожарными составами.
В самом концертном зале уберут деревянные панели, заменят люстры, пол, установят новые кресла для зрителей.

Схема: проектно-изыскательский институт «Сибжелдорпроект»
Большой зал консерватории рассчитан на 470 мест. В нём есть орган и три концертных рояля. Зал расположен в пристройке к основному зданию консерватории, возведённому в 1923-24 годах по проекту архитектора Андрея Крячкова. Именно «крячковская» часть здания имеет статус памятника архитектуры федерального значения. Первая в Сибири консерватория начала работать здесь в 1956 году. В 1960-е годы зданию добавили четвёртый этаж, а также две боковые пристройки.
О том, что Москва выделила 432 млн рублей на капитальный ремонт большого концертного зала Новосибирской консерватории имени М. И. Глинки, стало известно в апреле 2021 года. Решение о финансировании одобрили в комиссии федерального собрания РФ по распределению бюджетных ассигнований.
К слову, в прошлом году в консерватории озвучивали планы по благоустройству прилегающей территории. В этом году в пресс-службе сообщили, что в связи с ремонтно-реставрационными работами в большом концертном зале участок возле здания задействуют под строительную площадку.
«Реализация проекта благоустройства территории невозможна до окончания работ по реконструкции большого зала», — добавили в пресс-службе.

